6 kamer appartement in Amsterdam
-
Oppervlakte
- 136 m²
-
Type eigendom
- Appartement
-
Kamers
- 6 kamers
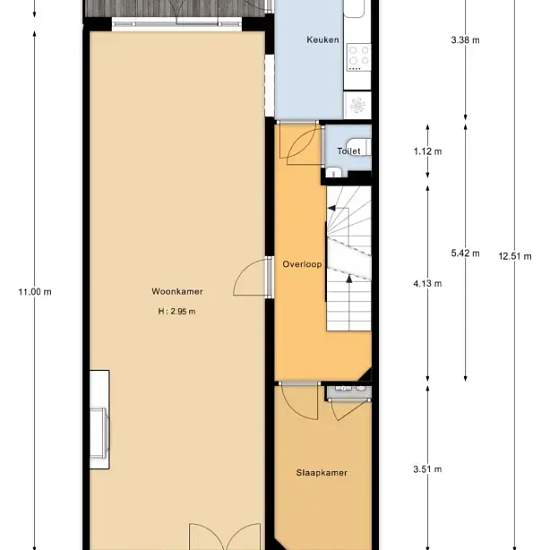
*** Interesse enkel via e-mail kenbaar maken! / Express interest by email only! *** Nieuw te huur! Wij mogen u aanbieden dit dubbele bovenhuis met eigen opgang voorzien van 4 slaapkamers! INDELING Begane grond Via eigen trapopgang bereikt u de tweede verdieping. Tweede verdieping Doorzonwoonkamer van ruim 41 m² met plafondhoogte van ca. 2,95m, Frans balkon aan de voorzijde en verdiept balkon aan de achterzijde (oosten) van ca. 5 m². Nette half open keuken voorzien van diverse inbouwapparatuur. Overloop met gastentoilet en slaapkamer welke ev...
- Huur
- € 3.750 per maand
- Locatie
- 1055, Amsterdam
- Huurperiode
- -
- Geverifieerd verhuurder
- Ja
- Datum
- 30 dagen geleden
- Beschikbaar
- Contact verhuurder
- Nutsvoorzieningen
- Contact verhuurder
- Borg
- € 7.500
- Vooruitbetaalde huur
- Contact verhuurder
Locatie