5 kamer huis in The Hague

Oppervlakte
171 m²
Type eigendom
Huis
Kamers
5 kamers

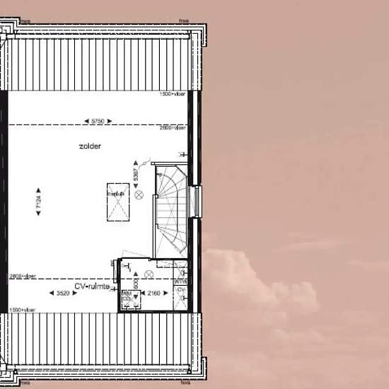
ROYALE TWEE-ONDER-EEN-KAPWONING VIA GARAGE GESCHAKELD EN GELEGEN AAN SIERWATER Interesse in deze woning? Reageer online en u ontvangt een email inclusief inschrijfformulier en instructies. Let op: voor deze woning gelden inkomenseisen. Voldoe je niet aan de inkomenseisen, dan kom je helaas niet in aanmerking voor deze woning. Garantstelling of vooruitbetaling worden niet geaccepteerd. Foto's zijn van een vergelijkbare woningen en geven een indicatie. Voor deze woningen geldende de volgende inkomenseisen: Voor eenverdieners dient het bruto ja...

Huur
€ 2.150 per maand
Locatie
2548, The Hague
Huurperiode
-
Geverifieerd verhuurder
Ja
Datum
9 dagen geleden
Beschikbaar
Contact verhuurder
Nutsvoorzieningen
Contact verhuurder
Borg
Contact verhuurder
Vooruitbetaalde huur
Contact verhuurder
Locatie