5 kamer huis in Appingedam

Oppervlakte
122 m²
Type eigendom
Huis
Kamers
5 kamers

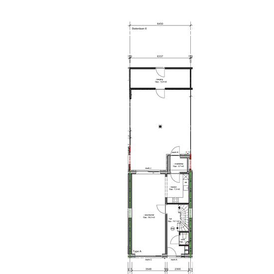
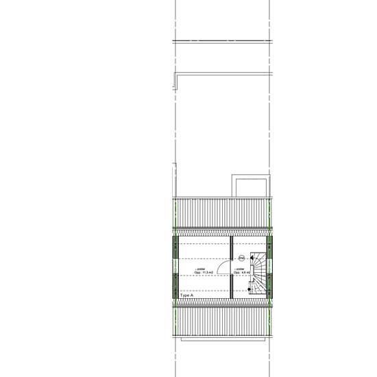
* PER 1-2-2026 BESCHIKBAAR VOOR TIJDELIJKE HUISVESTING * 4 SLAAPKAMERS * GARAGE AANWEZIG * De wijk "Tjamsweer" in Appingedam ondergaat momenteel een grootschalige herstructurering waarbij de woningvoorraad in het kader van de Sloop / Nieuwbouwregeling is vernieuwd. Eén van de woningen die van dit project deel uitmaakt is de tussenwoning aan de Statenlaan 8 die januari 2026 zal worden opgeleverd. De nieuwe woning zal wederom als met 4 slaapkamers en een garage worden herbouwd waarbij het gezien de bouwaard uiteraard als duurzaam te kenmerken...

Huur
€ 2.600 per maand
Huurperiode
-
Geverifieerd verhuurder
Ja
Datum
7 dagen geleden
Beschikbaar
Contact verhuurder
Nutsvoorzieningen
Contact verhuurder
Borg
Contact verhuurder
Vooruitbetaalde huur
Contact verhuurder
Locatie