5 kamer appartement in Rotterdam

Oppervlakte
141 m²
Type eigendom
Appartement
Kamers
5 kamers

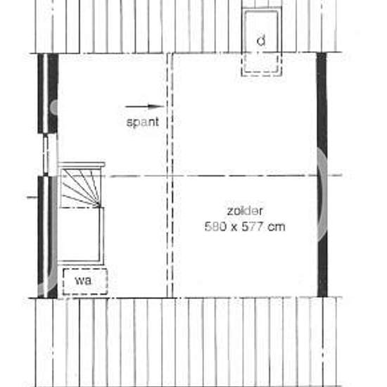
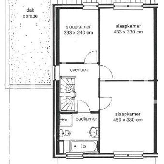
Prettig wonen in het gezellige Kralingen. Moderne herenhuizen te huur met alle voorzieningen bij de hand. In Noordelijk Niertje staan deze royale herenhuizen met vier slaapkamers. De woning beschikt over een lichte en tuingerichte woonkamer met half open keuken. De eerste verdieping geeft, via de overloop, toegang tot drie slaapkamers en een comfortabele badkamer met ligbad, separate douche, wastafel en een tweede toilet. De zolderetage, met twee grote dakramen, is geschikt als vierde slaapkamer. Voor de auto zijn er volop parkeermogelijkhed...

Huur
€ 1.878 per maand
Locatie
3062, Rotterdam
Huurperiode
-
Geverifieerd verhuurder
Ja
Datum
9 dagen geleden
Beschikbaar
01-01-2026
Nutsvoorzieningen
Contact verhuurder
Borg
Contact verhuurder
Vooruitbetaalde huur
Contact verhuurder
Locatie