4 kamer appartement in Amsterdam
-
Oppervlakte
- 107 m²
-
Type eigendom
- Appartement
-
Kamers
- 4 kamers
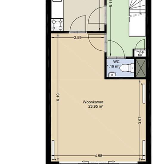
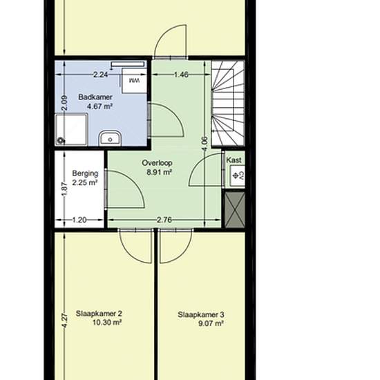
Omschrijving GEWELDIGE WONING! Ruim 4-kamer appartement van ca. 107m2 verdeeld over twee verdiepingen met een balkon! OMGEVING: Vanuit dit rustige stukje Amsterdam (Amsterdam Oost/Zeeburg) bent u in een mum van tijd in hartje centrum. Maar voor hippe plekken hoeft u niet eens ver te gaan; Amsterdam Oost is namelijk hip & happening! Voor recreatie kunt u terecht in het Oosterpark en het Flevopark. INDELING: Met de lift naar de vijfde verdieping; entree, de dichte keuken voorzien van een standaard keukenblok aan de voorzijde, aan de achterzij...
- Huur
- € 2.300 per maand
- Locatie
- 1019, Amsterdam
- Huurperiode
- Onbeperkt
- Geverifieerd verhuurder
- Ja
- Datum
- 11 dagen geleden
- Beschikbaar
- Contact verhuurder
- Nutsvoorzieningen
- € 57
- Borg
- € 1.500
- Vooruitbetaalde huur
- Contact verhuurder
Locatie