4 kamer appartement in Amsterdam
-
Oppervlakte
- 63 m²
-
Type eigendom
- Appartement
-
Kamers
- 4 kamers
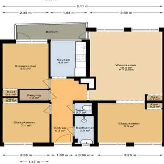
Appartement te huur aan de Aalbersestraat in Amsterdam Huurprijs: € 1650,00 ; Oppervlakte: 63m2 Indeling: Via een gezamenlijk entree met brievenbussen en een lift. kom je op de galerij op de tweede verdieping. Je komt binnen in de hal welke toegang geeft tot de andere vertrekken. Er is een ruime woonkamer welke toegang geeft tot het balkon. Er is ook een ruime eetkamer, De twee slaapkamer hebben een inbouwkast. De keuken is voorzien van inbouwapparatuur zoals een koelkast met vriesvakje, vaatwasser, combi-magnetron, afzuigkap en een induct...
- Huur
- € 1.650 per maand
- Locatie
- Amsterdam
- Huurperiode
- -
- Geverifieerd verhuurder
- Nee
- Datum
- Vandaag
- Beschikbaar
- Contact verhuurder
- Nutsvoorzieningen
- Contact verhuurder
- Borg
- Contact verhuurder
- Vooruitbetaalde huur
- Contact verhuurder
Locatie