4 kamer appartement in Amsterdam
-
Oppervlakte
- 88 m²
-
Type eigendom
- Appartement
-
Kamers
- 4 kamers
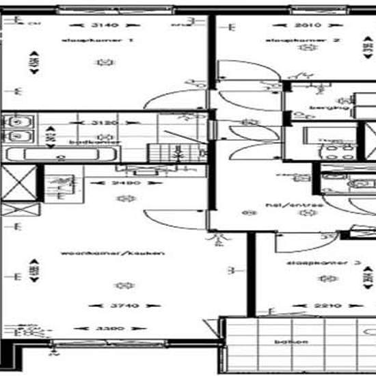
Appartement te huur aan de Brandslangstraat in Amsterdam Huurprijs: € 1.774,00 ; Oppervlakte ; 88 m2 Dit ruime en moderne vierkamerappartement biedt comfortabel wonen met een praktische indeling en veel lichtinval. De royale woonkamer met open keuken vormt het hart van de woning en biedt volop ruimte voor zowel een gezellige zithoek als een eethoek. Vanuit de woonkamer is er toegang tot het balkon, waar je heerlijk buiten kunt zitten. De keuken is voorzien van diverse inbouwapparatuur en biedt voldoende werk- en opbergruimte. Het apparteme...
- Huur
- € 1.774 per maand
- Locatie
- Amsterdam
- Huurperiode
- -
- Geverifieerd verhuurder
- Nee
- Datum
- Gisteren
- Beschikbaar
- Contact verhuurder
- Nutsvoorzieningen
- Contact verhuurder
- Borg
- Contact verhuurder
- Vooruitbetaalde huur
- Contact verhuurder
Locatie