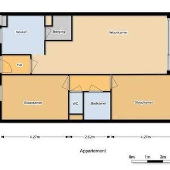
3 kamer appartement in Venlo
-
Oppervlakte
- 80 m²
-
Type eigendom
- Appartement
-
Kamers
- 3 kamers
Nee Direct bij de eigenaar Borg 860 Garantiestelling Niet mogelijk Huurtoeslag Mogelijk Inkomen eis N.V.T. Huurtermijn Onbepaalde termijn Oplevering Kaal
- Huur
- € 860 per maand
- Locatie
- 5921, Venlo
- Huurperiode
- -
- Geverifieerd verhuurder
- Ja
- Datum
- 10 dagen geleden
- Beschikbaar
- Contact verhuurder
- Nutsvoorzieningen
- Contact verhuurder
- Borg
- Contact verhuurder
- Vooruitbetaalde huur
- Contact verhuurder
Locatie