3 kamer appartement in Utrecht

Oppervlakte
96 m²
Type eigendom
Appartement
Kamers
3 kamers

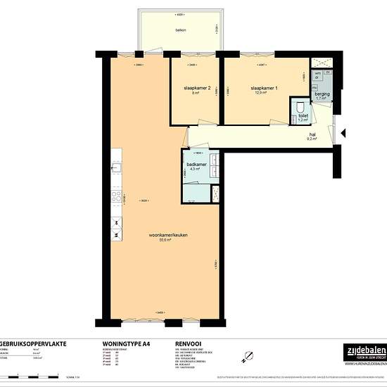
Een 3-kamer appartement in de binnenstad van Utrecht. Dit appartement is gelegen op de 3e etage en heeft een oppervlakte van 96 m². Het appartement heeft een moderne, lichte keuken met Siemens inbouwapparatuur. De badkamer is voorzien van een ruime douche en dubbele wastafel. Met het centrum en voorzieningen in de buurt is dit een geweldige locatie in Utrecht. Het appartement beschikt over een parkeerplaats in de ondergelegen parkeergarage. Het is niet mogelijk om een parkeervergunning bij de gemeente te verkrijgen voor dit appartement. - Hu...

Huur
€ 1.833 per maand
Locatie
3513, Utrecht
Huurperiode
-
Geverifieerd verhuurder
Ja
Datum
Vandaag
Beschikbaar
24-02-2026
Nutsvoorzieningen
€ 38
Borg
Contact verhuurder
Vooruitbetaalde huur
Contact verhuurder
Locatie