3 kamer appartement in Utrecht
-
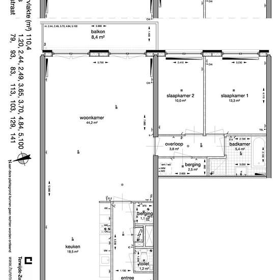
Oppervlakte
- 110 m²
-
Type eigendom
- Appartement
-
Kamers
- 3 kamers
Ruim 3-kamer appartement van maar liefst 110 m², met 2 slaapkamers. Het appartement beschikt over een badkamer met ligbad, douchecabine en wastafel, een woonkamer met grote raampartijen en een volledig ingerichte keuken met diverse inbouwapparatuur. Het balkon is gelegen op het oosten. Het appartement beschikt over een eigen externe berging en een parkeerplaats in de ondergelegen parkeergarage. Om in aanmerking te komen voor het woningaanbod van Bouwinvest kun je je interesse kenbaar maken via de website WonenBijBouwinvest. Tevens kun je op ...
- Huur
- € 1.644 per maand
- Locatie
- 3543, Utrecht
- Huurperiode
- -
- Geverifieerd verhuurder
- Ja
- Datum
- Gisteren
- Beschikbaar
- Contact verhuurder
- Nutsvoorzieningen
- € 50
- Borg
- Contact verhuurder
- Vooruitbetaalde huur
- Contact verhuurder
Locatie