3 kamer appartement in The Hague
-
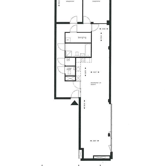
Oppervlakte
- 143 m²
-
Type eigendom
- Appartement
-
Kamers
- 3 kamers
Zeer ruim 3-kamerappartement met een woonoppervlakte van 143 m² , gelegen op de 1e etage van Prinsenhof. Het appartement beschikt over een open keuken met diverse inbouwapparatuur, een badkamer met ligbad, douche en dubbele wastafel en 2 ruime slaapkamers. Woning is voorzien van een prachtige, nieuwe laminaatvloer! Het appartement ligt midden in de Haagse wijk Bezuidenhout: een heerlijke combinatie tussen het stadse leven en rust. Belangrijke kenmerken: - 3-kamerappartement van 143 m² - Open keuken met inbouwapparatuur - Badkamer met ligbad,...
- Huur
- € 2.137 per maand
- Locatie
- 2595, The Hague
- Huurperiode
- -
- Geverifieerd verhuurder
- Ja
- Datum
- Vandaag
- Beschikbaar
- Contact verhuurder
- Nutsvoorzieningen
- € 85
- Borg
- Contact verhuurder
- Vooruitbetaalde huur
- Contact verhuurder
Locatie