3 kamer appartement in Rotterdam
-
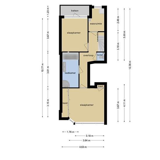
Oppervlakte
- 115 m²
-
Type eigendom
- Appartement
-
Kamers
- 3 kamers
In de keuken vindt u: koelkast, vriezer, wasmachine, droger, strijkijzer, oven, broodrooster, koffiezetapparaat Het appartement is per direct beschikbaar.
- Huur
- € 800 per maand
- Locatie
- 3075, Rotterdam
- Huurperiode
- -
- Geverifieerd verhuurder
- Nee
- Datum
- 13 dagen geleden
- Beschikbaar
- Contact verhuurder
- Nutsvoorzieningen
- Contact verhuurder
- Borg
- Contact verhuurder
- Vooruitbetaalde huur
- Contact verhuurder
Locatie