3 kamer appartement in Rijnsburg
-
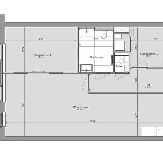
Oppervlakte
- 76 m²
-
Type eigendom
- Appartement
-
Kamers
- 3 kamers
LET OP: VERHUUR UITSLUITEND VANAF 55 JAAR EN OUDER Leven in luxe en comfort, dat is wonen in Calla. Als onderdeel van woonwijk De Bloem in Rijnsburg biedt appartementencomplex Calla met haar luxe full-service woningen een uniek concept! Bent u 55+ en wilt u comfortabel wonen met diverse faciliteiten op locatie? Dan vindt u in Calla alles waar u naar op zoek bent! Dit zonnige 3-kamer appartement heeft een woonoppervlakte van ca. 76 m2. De woning is uitgevoerd met een luxe keuken voorzien van koelkast, aparte vriezer, vaatwasser, inductie kook...
- Huur
- € 1.625 per maand
- Locatie
- 2231, Rijnsburg
- Huurperiode
- Onbeperkt
- Geverifieerd verhuurder
- Ja
- Datum
- Vandaag
- Beschikbaar
- Contact verhuurder
- Nutsvoorzieningen
- Contact verhuurder
- Borg
- € 1.975
- Vooruitbetaalde huur
- Contact verhuurder
Locatie