3 kamer appartement in Nederland
-
Oppervlakte
- 93 m²
-
Type eigendom
- Appartement
-
Kamers
- 3 kamers
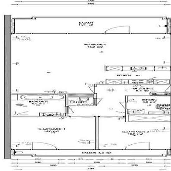
Appartement Anton Philipslaan in Eindhoven De link staat in de comment Dit appartement heeft een ruime woonkamer met open keuken en een prettige, lichte indeling. Vanuit de woonkamer is er directe toegang tot een balkon, wat zorgt voor een fijne verbinding tussen binnen en buiten. De woning beschikt over twee slaapkamers, een nette badkamer met ligbad, een separaat toilet en een praktische berging. Daarnaast is er aan de achterzijde een tweede buitenruimte aanwezig. Dankzij de rechte plattegrond zijn de ruimtes efficiënt te gebruiken en ee...
- Huur
- € 1.255 per maand
- Locatie
- Nederland
- Huurperiode
- -
- Geverifieerd verhuurder
- Nee
- Datum
- 20 dagen geleden
- Beschikbaar
- Contact verhuurder
- Nutsvoorzieningen
- Contact verhuurder
- Borg
- Contact verhuurder
- Vooruitbetaalde huur
- Contact verhuurder
Locatie