3 kamer appartement in Leiden
-
Oppervlakte
- 91 m²
-
Type eigendom
- Appartement
-
Kamers
- 3 kamers
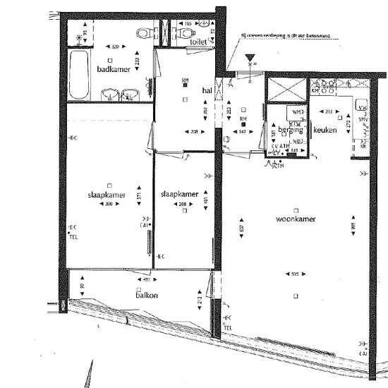
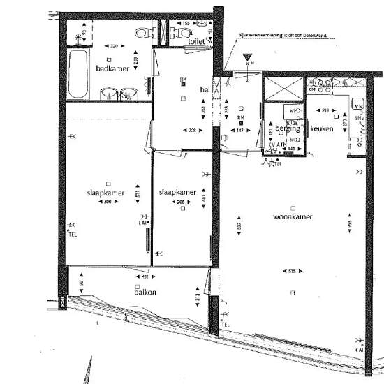
Wonen met de stad Leiden aan uw voeten. Zo mooi als dat klinkt, zo mooi is het ook. In het Zuidwesten van Leiden – op 10 minuten fietsen van het historische centrum – is boven winkelcentrum De Luifelbaan de hoogste woontoren van Leiden gerealiseerd. Geen boodschappen in huis? Dat is geen probleem als u in De Stadswachter woont. Gewoon even naar beneden lopen. Deze woontoren is boven de Albert Heijn XL in winkelcentrum De Luifelbaan gebouwd. Het winkelcentrum beschikt over winkels, restaurants en café's. Dit driekamer appartement met een oppe...
- Huur
- € 1.440 per maand
- Locatie
- 2321, Leiden
- Huurperiode
- -
- Geverifieerd verhuurder
- Ja
- Datum
- 6 dagen geleden
- Beschikbaar
- Contact verhuurder
- Nutsvoorzieningen
- € 58
- Borg
- Contact verhuurder
- Vooruitbetaalde huur
- Contact verhuurder
Locatie