3 kamer appartement in Huizen
-
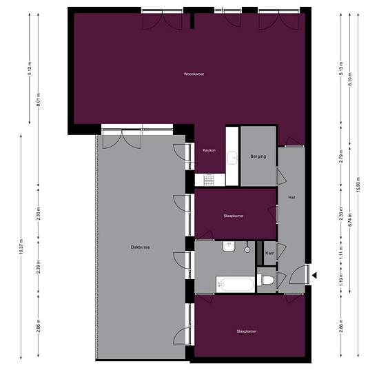
Oppervlakte
- 111 m²
-
Type eigendom
- Appartement
-
Kamers
- 3 kamers
Apartment overview Appartement aan Hugo de Grootsingel 23 1277 CM HUIZEN in Huizen. Dit appartement biedt 3 kamers met een gebruiksoppervlakte van circa 111 m². Het gebouw is gerealiseerd rond 2006. De indeling is praktisch en sluit goed aan bij het dagelijkse wooncomfort. Dankzij de gunstige ligging zijn voorzieningen zoals winkels, horeca en groen binnen korte afstand bereikbaar. Location De woning bevindt zich in Huizen, op een goed bereikbare locatie met zowel stedelijke voorzieningen als rustige woonstraten in de directe omgeving. ...
- Huur
- € 1.650 per maand
- Locatie
- 1277, Huizen
- Huurperiode
- -
- Geverifieerd verhuurder
- Ja
- Datum
- 3 dagen geleden
- Beschikbaar
- 17-02-2026
- Nutsvoorzieningen
- € 95
- Borg
- Contact verhuurder
- Vooruitbetaalde huur
- Contact verhuurder
Locatie