3 kamer appartement in Harderwijk
-
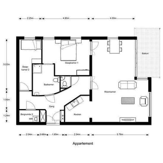
Oppervlakte
- 110 m²
-
Type eigendom
- Appartement
-
Kamers
- 3 kamers
Gelegen in de prachtige bosgebieden van Harderwijk, treft u het appartementencomplex "Leuvenumsehof". Dit 3-KAMER-APPARTEMENT maakt onderdeel uit van een kleinschalig appartementengebouw midden in de bossen. De appartementen zijn toegankelijk en voorzien van alarmering en diverse andere extra installatietechnische voorzieningen. Met deze installatietechnische voorzieningen, het zogenaamde “domotica”, zijn bewoners in staat om veiliger en comfortabeler te wonen. Harderwijk ligt in Gelderland, aan het Veluwemeer en is gemakkelijk te bereiken v...
- Huur
- € 1.755 per maand
- Locatie
- 3847, Harderwijk
- Huurperiode
- Onbeperkt
- Geverifieerd verhuurder
- Ja
- Datum
- 6 dagen geleden
- Beschikbaar
- Contact verhuurder
- Nutsvoorzieningen
- Contact verhuurder
- Borg
- € 1.900
- Vooruitbetaalde huur
- Contact verhuurder
Locatie