3 kamer appartement in Den Haag
-
Oppervlakte
- 60 m²
-
Type eigendom
- Appartement
-
Kamers
- 3 kamers
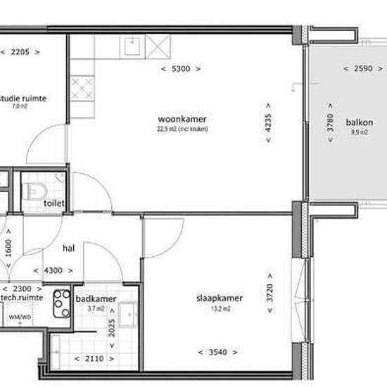
" Te huur: Licht 3-kamer appartement aan de President Kennedylaan in Den Haag President Kennedylaan, 2517 HV Den Haag € 1.375,- excl. G/W/E Appartement Kamers: 3 Woonoppervlakte: ca. 60 m² Beschrijving De lichte en ruime woonkamer vormt samen met de open keuken een prettige en moderne leefruimte Open keuken met een praktische indeling, ideaal om te koken en gezellig samen te zijn Twee comfortabele slaapkamers, perfect als slaap-, werk- of logeerkamer Verzorgde badkamer met douche en toilet Dankzij de grote ramen geniet j...
- Huur
- € 1.375 per maand
- Locatie
- Den Haag
- Huurperiode
- -
- Geverifieerd verhuurder
- Nee
- Datum
- Vandaag
- Beschikbaar
- Contact verhuurder
- Nutsvoorzieningen
- Contact verhuurder
- Borg
- Contact verhuurder
- Vooruitbetaalde huur
- Contact verhuurder
Locatie