3 kamer appartement in Amsterdam
-
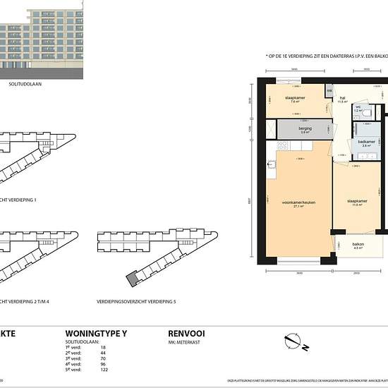
Oppervlakte
- 68 m²
-
Type eigendom
- Appartement
-
Kamers
- 3 kamers
3-kamer appartement met een woonoppervlakte van 68,9 m2, een volledig ingerichte keuken en badkamer met douche en dubbele wastafel. Locatie vlakbij het centrum, omgeven door groen en water en 10 minuten van station Amsterdam Amstel. Deze woning beschikt over 1 parkeerplek in de garage. - Huurperiode - Een huurovereenkomst wordt aangegaan voor ten minste één jaar en wordt vanaf dan verlengd met onbepaalde tijd. Na de minimale termijn van 12 kalendermaanden geldt er een opzegtermijn van 1 kalendermaand. - Inkomenseis - Om een woning te huren k...
- Huur
- € 1.905 per maand
- Locatie
- 1096, Amsterdam
- Huurperiode
- -
- Geverifieerd verhuurder
- Ja
- Datum
- Vandaag
- Beschikbaar
- 24-02-2026
- Nutsvoorzieningen
- € 100
- Borg
- Contact verhuurder
- Vooruitbetaalde huur
- Contact verhuurder
Locatie