3 kamer appartement in Amsterdam
-
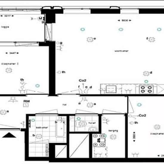
Oppervlakte
- 71 m²
-
Type eigendom
- Appartement
-
Kamers
- 3 kamers
" Modern 3-Kamer Appartement aan de Ottho Heldringstraat – Amsterdam Ottho Heldringstraat, 1066 BA Amsterdam Huurprijs: € 1.639,- per maand (excl. G/W/E) Op zoek naar een stijlvol en licht appartement in Amsterdam? Dit 3-kamerappartement van ca. 71 m² biedt een moderne en comfortabele leefruimte, ideaal voor starters, stellen of jonge professionals. Kenmerken van het appartement: Type: Appartement Aantal kamers: 3 Woonoppervlakte: ca. 71 m² Lichte woonkamer dankzij grote ramen Open keuken – het hart van het appartement, perf...
- Huur
- € 1.639 per maand
- Locatie
- Amsterdam
- Huurperiode
- -
- Geverifieerd verhuurder
- Nee
- Datum
- Vandaag
- Beschikbaar
- Contact verhuurder
- Nutsvoorzieningen
- Contact verhuurder
- Borg
- Contact verhuurder
- Vooruitbetaalde huur
- Contact verhuurder
Locatie