3 kamer appartement in Amsterdam
-
Oppervlakte
- 65 m²
-
Type eigendom
- Appartement
-
Kamers
- 3 kamers
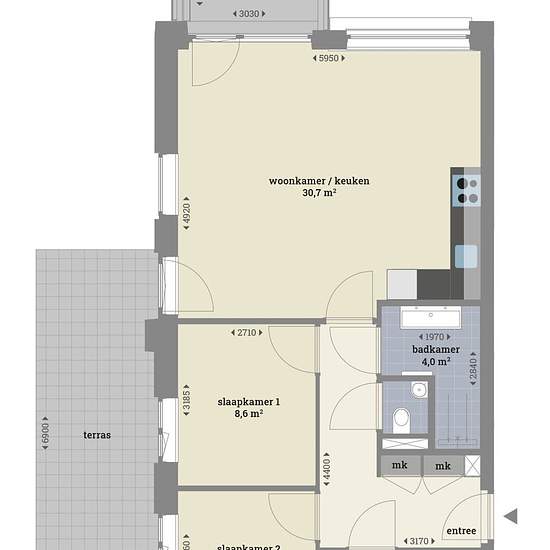
2-slaapkamer appartement met een woonoppervlakte van 66 m2. De moderne, lichte keuken is voorzien van inbouwapparatuur en de badkamer heeft een inloopdouche, dubbele wastafel en een designradiator. Het Dok ligt aan het IJ, in het creatieve hart van Amsterdam-Noord en 3 minuten van de IJ-pont naar Amsterdam Centraal, vlakbij de A10. INTERESSE IN HUREN VAN EEN WONING IN HET DOK? Check op de website van Wonen bij Bouwinvest, op de pagina “Huurcalculator”, of je voldoet aan de (inkomens) voorwaarden. Want voldoende vast en regelmatig inkomen is ...
- Huur
- € 2.004 per maand
- Locatie
- 1033, Amsterdam
- Huurperiode
- -
- Geverifieerd verhuurder
- Ja
- Datum
- 12 dagen geleden
- Beschikbaar
- Contact verhuurder
- Nutsvoorzieningen
- € 55
- Borg
- Contact verhuurder
- Vooruitbetaalde huur
- Contact verhuurder
Locatie