3 kamer appartement in Amsterdam
-
Oppervlakte
- 81 m²
-
Type eigendom
- Appartement
-
Kamers
- 3 kamers
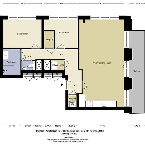
3-kamer appartement met een woonoppervlakte van 81 m2, volledig ingerichte moderne keuken met vijf apparaten en volledig betegelde badkamer met douche, brede wastafel met spiegel en vloerverwarming. De MARK is een nieuwe hotspot op de hoek van de Vlierweg en Hulstweg en 8 minuten fietsen naar Amsterdam Centraal Station. - Financieel - • Huurprijs: €1769,00 per maand. • servicekosten €75,00 per maand. - Huurperiode - Een huurovereenkomst wordt aangegaan voor ten minste één jaar en wordt vanaf dan verlengd met onbepaalde tijd. Na de minimale t...
- Huur
- € 1.769 per maand
- Locatie
- 1032, Amsterdam
- Huurperiode
- -
- Geverifieerd verhuurder
- Ja
- Datum
- Vandaag
- Beschikbaar
- 13-01-2026
- Nutsvoorzieningen
- € 75
- Borg
- Contact verhuurder
- Vooruitbetaalde huur
- Contact verhuurder
Locatie