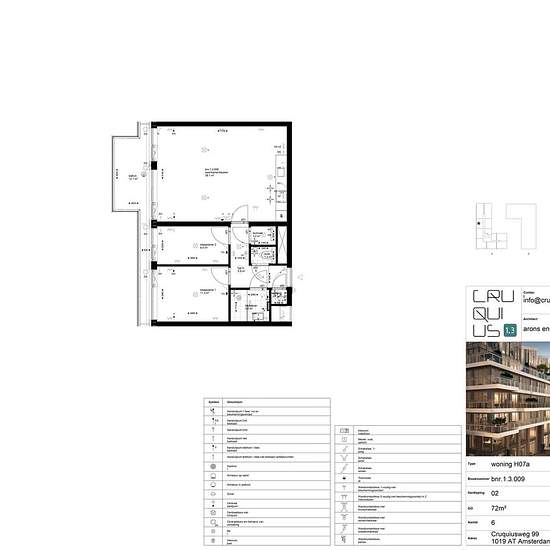
3 kamer appartement in Amsterdam
-
Oppervlakte
- 72 m²
-
Type eigendom
- Appartement
-
Kamers
- 3 kamers
Per direct beschikbaar! Cruquius 1.3 bestaat uit vier imposante L-vormige gebouwen aan de Entrepothaven op Cruquiuseiland. In het meest rechtse gebouw liggen de huurappartementen, in 1.3H. Het unieke design, de fraaie buitenruimten en de luxe afwerking maken dit tot één van de pareltjes van Cruquiuseiland. In Cruquius 1.3H heb je keuze uit 52 huurappartementen. De grootte van de appartementen varieert van 43 tot 122 m2. -Licht, lucht en een geweldig uitzicht- De appartementen zijn heerlijk licht dankzij de hoge raampartijen vanaf de vloer. E...
- Huur
- € 1.700 per maand
- Locatie
- 1019, Amsterdam
- Huurperiode
- Onbeperkt
- Geverifieerd verhuurder
- Ja
- Datum
- 2 dagen geleden
- Beschikbaar
- Contact verhuurder
- Nutsvoorzieningen
- Contact verhuurder
- Borg
- Contact verhuurder
- Vooruitbetaalde huur
- Contact verhuurder
Locatie