2 kamer appartement in Zwolle
-
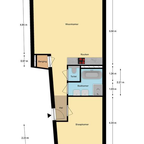
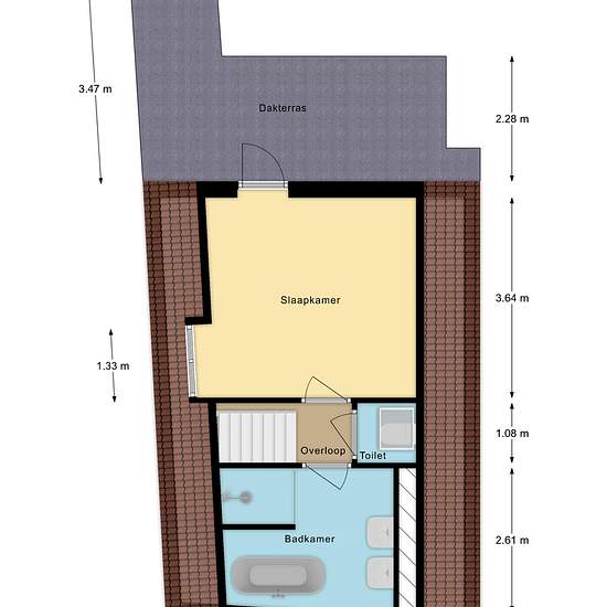
Oppervlakte
- 65 m²
-
Type eigendom
- Appartement
-
Kamers
- 2 kamers
SHORT STAY – LUXE GEMEUBILEERDE APPARTEMENTEN IN HARTJE ZWOLLE Op zoek naar tijdelijke woonruimte op een unieke locatie in Zwolle? Wij bieden drie hoogwaardige, volledig gemeubileerde appartementen midden in de historische binnenstad. Perfect voor expats, young professionals, internationale werknemers of iedereen die voor een bepaalde periode zorgeloos en comfortabel wil wonen. Deze moderne city-apartments ookwel de de "Van Hattum Suites"zijn smaakvol ingericht én direct beschikbaar, morgen al intrekken? Geen probleem. Alles is aanwezig: een...
- Huur
- € 1.400 per maand
- Locatie
- 8011, Zwolle
- Huurperiode
- -
- Geverifieerd verhuurder
- Ja
- Datum
- Gisteren
- Beschikbaar
- 15-12-2025
- Nutsvoorzieningen
- Contact verhuurder
- Borg
- Contact verhuurder
- Vooruitbetaalde huur
- Contact verhuurder
Locatie