2 kamer appartement in Zeist
-
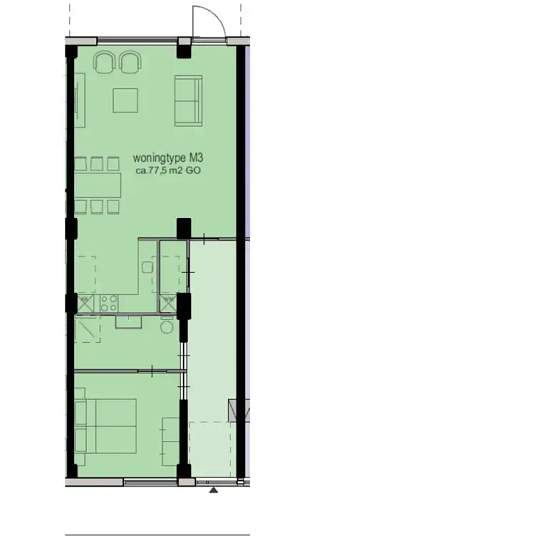
Oppervlakte
- 78 m²
-
Type eigendom
- Appartement
-
Kamers
- 2 kamers
********* MOLENWEG TE ZEIST OPEN HUIS ELKE DONDERDAG TUSSEN 10:30 UUR EN 12:00 UUR ******* U bent van harte welkom 55+ APPARTEMENTEN: Let op: Het betreft een seniorencomplex, derhalve nemen wij alleen reacties in behandeling van geïnteresseerden met een leeftijd van 55 jaar en ouder! Het appartement: Mooi tweekamer appartement met open hoek keuken en een lichte woonkamer. Het appartement is gelegen op de begaande grond en voorzien van een ruime slaapkamer met grote ramen en een badkamer met ruime douche, een wastafel en toilet. De keuken is ...
- Huur
- € 1.333 per maand
- Locatie
- 3708, Zeist
- Huurperiode
- -
- Geverifieerd verhuurder
- Ja
- Datum
- 25 dagen geleden
- Beschikbaar
- Contact verhuurder
- Nutsvoorzieningen
- € 295
- Borg
- € 1.333
- Vooruitbetaalde huur
- Contact verhuurder
Locatie