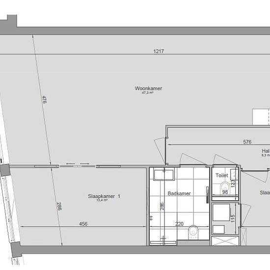
2 kamer appartement in Rijnsburg
-
Oppervlakte
- 60 m²
-
Type eigendom
- Appartement
-
Kamers
- 2 kamers
2 bedrooms in De Klok 407,2231 DW Rijnsburg Frederiksoord-Noord 686 eur
- Huur
- € 686 per maand
- Locatie
- 2231, Rijnsburg
- Huurperiode
- -
- Geverifieerd verhuurder
- Nee
- Datum
- 21 dagen geleden
- Beschikbaar
- Contact verhuurder
- Nutsvoorzieningen
- Contact verhuurder
- Borg
- Contact verhuurder
- Vooruitbetaalde huur
- Contact verhuurder
Locatie