2 kamer appartement in Poeldijk
-
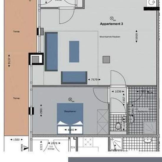
Oppervlakte
- 69 m²
-
Type eigendom
- Appartement
-
Kamers
- 2 kamers
TE HUUR - VOORSTRAAT 98B IN POELDIJK Aan de Voorstraat in het gezellige centrum van Poeldijk is het voormalige Rabobankgebouw in 2013 getransformeerd tot een kleinschalig en verzorgd appartementencomplex met negen moderne 2-kamerappartementen. Het complex bestaat uit vijf appartementen op de begane grond met tuin en vier appartementen op de verdieping. Hier woont u rustig, maar toch op korte afstand van winkels, horeca en andere dagelijkse voorzieningen. Dit 2-kamerappartement op de begane grond beschikt over een eigen entree. Via de hal met...
- Huur
- € 1.173 per maand
- Locatie
- 2685, Poeldijk
- Huurperiode
- Onbeperkt
- Geverifieerd verhuurder
- Ja
- Datum
- 5 dagen geleden
- Beschikbaar
- Contact verhuurder
- Nutsvoorzieningen
- Contact verhuurder
- Borg
- € 2.346
- Vooruitbetaalde huur
- Contact verhuurder
Locatie