2 kamer appartement in Nederland

Oppervlakte
57 m²
Type eigendom
Appartement
Kamers
2 kamers

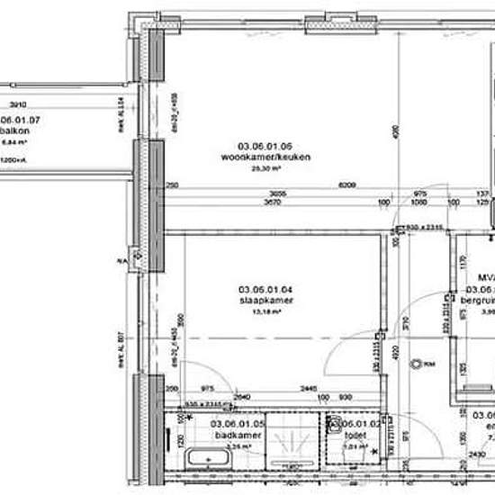
Appartement PSV-laan in Eindhoven De link staat in de comment De woonkamer van maar liefst 25,3 m² vormt het hart van het appartement. Dankzij de open indeling en directe verbinding met de keuken is dit een fijne plek om te wonen en te ontspannen. Vanuit de woonkamer heb je toegang tot het balkon. De open keuken is compleet uitgevoerd en voorzien van een inductiekookplaat met afzuigkap, vaatwasser, koelkast en combimagnetron. Praktisch en netjes afgewerkt, met alles wat je nodig hebt. Het appartement beschikt over een slaapkamer van 13,1...

Huur
€ 1.043 per maand
Locatie
Nederland
Huurperiode
-
Geverifieerd verhuurder
Nee
Datum
3 dagen geleden
Beschikbaar
Contact verhuurder
Nutsvoorzieningen
Contact verhuurder
Borg
Contact verhuurder
Vooruitbetaalde huur
Contact verhuurder
Locatie