2 kamer appartement in Leiden
-
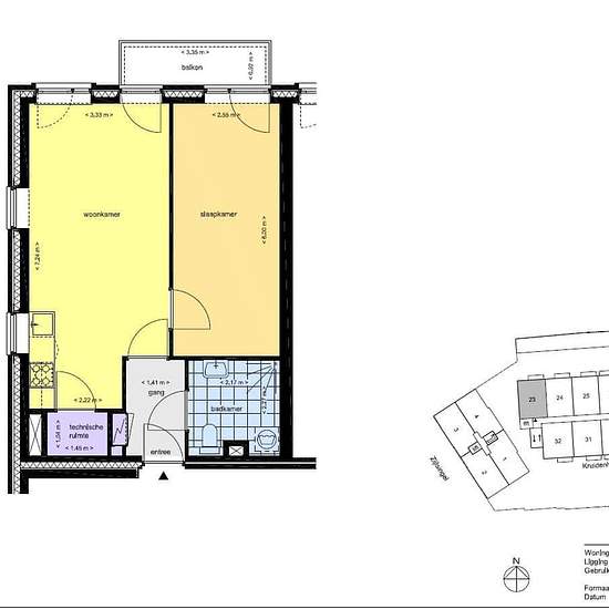
Oppervlakte
- 49 m²
-
Type eigendom
- Appartement
-
Kamers
- 2 kamers
KRUIDENHOF 23, LEIDEN LET OP!! DE FOTO'S ZIJN IMPRESSIE FOTO'S EN GEVEN EEN BEELD VAN HOE DE WONING ERUIT ZIET. Op de 1e etage gelegen van het nieuwbouwcomplex ''DE RUYTER'' staat dit gestoffeerde 2-kamer (1 slaapkamer) appartement aan de achterzijde van gebouw B met luxe keuken, badkamer en eigen balkon. Het liefst willen we het allemaal. Duurzaam buiten wonen en toch vlakbij de stad. Die wens wordt werkelijkheid bij ”De Ruyter” in Leiden. Wonen aan / buiten de singel maar toch minder dan vijf minuten fietsen, zo dichtbij is het bruisend...
- Huur
- € 1.695 per maand
- Locatie
- 2315, Leiden
- Huurperiode
- -
- Geverifieerd verhuurder
- Ja
- Datum
- 7 dagen geleden
- Beschikbaar
- 01-02-2026
- Nutsvoorzieningen
- Contact verhuurder
- Borg
- € 1.695
- Vooruitbetaalde huur
- Contact verhuurder
Locatie