2 kamer appartement in Hilversum
-
Oppervlakte
- 65 m²
-
Type eigendom
- Appartement
-
Kamers
- 2 kamers
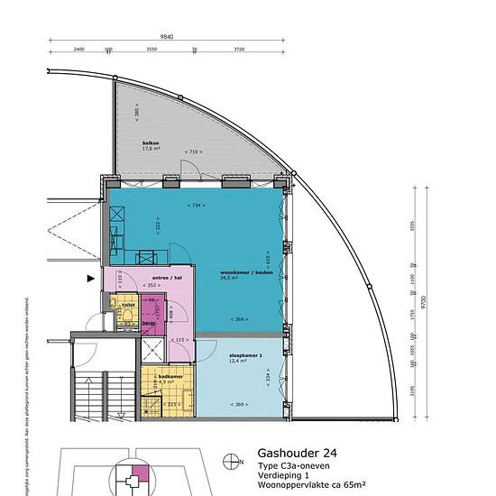
Ruim en modern appartement in stadsdeel Hilversum-Oost van 65 m2. De woning is voorzien van onder andere een open keuken, een badkamer met douche en dubbele wastafel, 1 slaapkamer en een enorm balkon. Het appartement is onderdeel van appartementencomplex Gashouders is gelegen in Villa Industria in de wijk Over 't Spoor Gashouder 24 2-kamerappartement met een oppervlakte van 65 m2. Het appartement beschikt over een lichte woonkamer van 34 m2 met toegang tot het balkon van maar liefst 18m2! Het appartement heeft 1 slaapkamer van 12 m2. De open...
- Huur
- € 1.151 per maand
- Locatie
- 1221, Hilversum
- Huurperiode
- Onbeperkt
- Geverifieerd verhuurder
- Ja
- Datum
- 5 dagen geleden
- Beschikbaar
- Contact verhuurder
- Nutsvoorzieningen
- Contact verhuurder
- Borg
- Contact verhuurder
- Vooruitbetaalde huur
- Contact verhuurder
Locatie