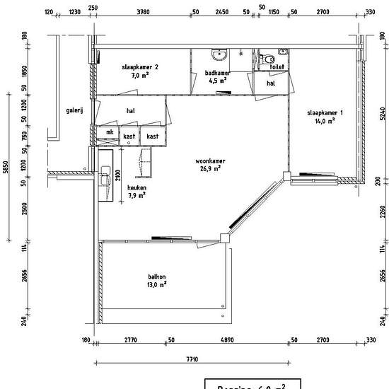
2 kamer appartement in Den Helder
-
Oppervlakte
- 66 m²
-
Type eigendom
- Appartement
-
Kamers
- 2 kamers
Groepsbezichtiging 17 december om 09.30 uur! Wij nodigen de eerste 15 kandidaten van de kandidatenlijst uit voor een groepsbezichtiging. De bezichtiging vindt plaats op 17 december 2025 om 09.30 uur. Kunt u niet komen dan kunt u iemand machtigen om namens u te kijken. Komt u de woning niet bezichtigen dan slaan wij u over voor deze woning. U mag maximaal één extra persoon meenemen naar de bezichtiging. Tijdens de bezichtiging vertellen medewerkers van de Woningstichting u meer over de buurt en de woning zelf. Interesse U dient dezelfde dag a...
- Let op: deze woning wordt toegewezen op basis van een wachtrijsysteem.
- Huur
- € 665 per maand
- Locatie
- 1781, Den Helder
- Huurperiode
- -
- Geverifieerd verhuurder
- Ja
- Datum
- 3 dagen geleden
- Beschikbaar
- 15-12-2025
- Nutsvoorzieningen
- Contact verhuurder
- Borg
- Contact verhuurder
- Vooruitbetaalde huur
- Contact verhuurder
Locatie