2 kamer appartement in Den Haag
-
Oppervlakte
- 61 m²
-
Type eigendom
- Appartement
-
Kamers
- 2 kamers
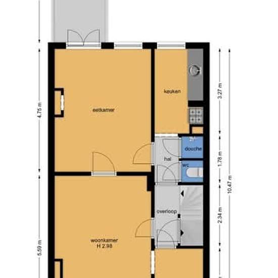
"Licht Appartement te Huur – Beeklaan, Den Haag Beeklaan, 2562 AK Den Haag € 1.100,- excl. G/W/E Kamers: 2 | 61 m² Beschrijving Gezellig en licht appartement, ideaal voor studenten of starters . Indeling: Entree naar het appartement met een ruime woonkamer en een achterkamer voor extra comfort . Keuken voorzien van moderne inbouwapparatuur, perfect voor het bereiden van je favoriete maaltijden . Toegang tot een zonnig balkon om te genieten van de buitenlucht en het mooie weer . Gelegen in een rustige en centraal gelegen buu...
- Huur
- € 1.100 per maand
- Locatie
- Den Haag
- Huurperiode
- -
- Geverifieerd verhuurder
- Nee
- Datum
- Vandaag
- Beschikbaar
- Contact verhuurder
- Nutsvoorzieningen
- Contact verhuurder
- Borg
- Contact verhuurder
- Vooruitbetaalde huur
- Contact verhuurder
Locatie