2 kamer appartement in Amsterdam
-
Oppervlakte
- 70 m²
-
Type eigendom
- Appartement
-
Kamers
- 2 kamers
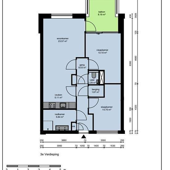
Beschikbaar per 01 februari 2026: luxe driekamer appartement op de Zuidas! Op een prachtige locatie aan de Zuidas, bieden wij dit mooie appartement aan. Het beschikt over 2 slaapkamers, een woonkamer met open keuken en een moderne badkamer. Dit appartement is gelegen op de 3e etage in complex IRA aan de George Gershwinlaan. Het appartement is onderdeel van het complex „Gershwin Brothers” en beschikt over 75 woningen met verschillende woontypes. Vanuit de stijlvolle gemeenschappelijke entree bereik je de 2 liften naar alle 6 etages. Alle appa...
- Huur
- € 2.041 per maand
- Locatie
- 1082, Amsterdam
- Huurperiode
- -
- Geverifieerd verhuurder
- Ja
- Datum
- 5 dagen geleden
- Beschikbaar
- 01-02-2026
- Nutsvoorzieningen
- € 75
- Borg
- Contact verhuurder
- Vooruitbetaalde huur
- Contact verhuurder
Locatie