2 kamer appartement in Amsterdam
-
Oppervlakte
- 87 m²
-
Type eigendom
- Appartement
-
Kamers
- 2 kamers
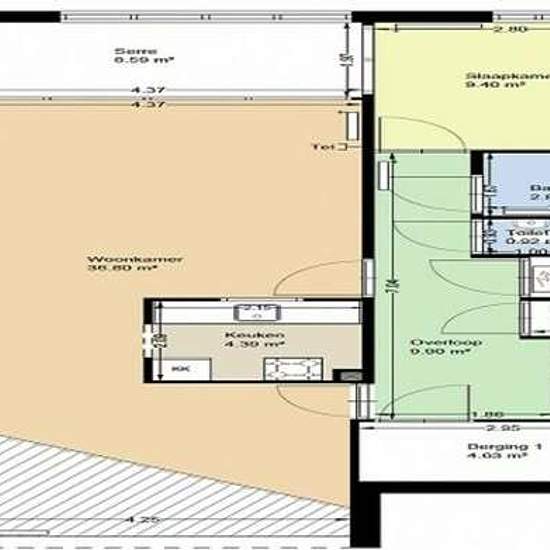
Appartement te huur aan de Baron G.A. Tindalplein in Amsterdam Huurprijs: € 1.650,00 ; Oppervlakte ; 87 m2 Indeling: Met de lift naar de 9e verdieping: entree, trap naar de 10e verdieping. 10e verdieping; overloop, woonkamer met een half open keuken voorzien van een standaard keukenblok en een serre, de badkamer voorzien van een wastafel en een douche, een separaat toilet met een fonteintje, inpandige berging en een slaapkamer aan de voorzijde. Berging gelegen in de onderbouw. Geen verhuur aan studenten!; Meer informatie over doze woning?...
- Huur
- € 1.650 per maand
- Locatie
- Amsterdam
- Huurperiode
- -
- Geverifieerd verhuurder
- Nee
- Datum
- 11 dagen geleden
- Beschikbaar
- Contact verhuurder
- Nutsvoorzieningen
- Contact verhuurder
- Borg
- Contact verhuurder
- Vooruitbetaalde huur
- Contact verhuurder
Locatie