1 kamer appartement in Utrecht
-
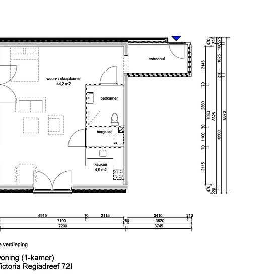
Oppervlakte
- 62 m²
-
Type eigendom
- Appartement
-
Kamers
- 1 kamer
Lees alstublieft de voorwaarden tekst. Let op! Bekijk in dit overzicht met welk inkomen je in aanmerking komt voor deze woning. Deze woning was oorspronkelijk een studio, maar beschikt nu over een aparte slaapkamer! Wil je wonen één van de groenste wijken van Utrecht? Dan is dit appartementencomplex in Overvecht iets voor jou! Op zowel de vierde als de zesde verdieping van de Clophaemer zit een dakterras waar je heerlijk van de zon kunt genieten. Beneden in de kelder is een fietsenstalling. Heb je een auto? Dan is het mogelijk om een park...
- Let op: deze woning wordt toegewezen op basis van een wachtrijsysteem.
- Huur
- € 932 per maand
- Locatie
- 3563, Utrecht
- Huurperiode
- -
- Geverifieerd verhuurder
- Ja
- Datum
- Gisteren
- Beschikbaar
- 01-05-2026
- Nutsvoorzieningen
- € 58
- Borg
- Contact verhuurder
- Vooruitbetaalde huur
- Contact verhuurder
Locatie