1 kamer appartement in Haarlem
-
Oppervlakte
- 90 m²
-
Type eigendom
- Appartement
-
Kamers
- 1 kamer
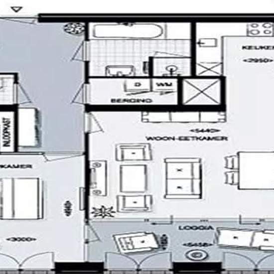
Studio te huur aan de Bellevuelaan in Haarlem Huurprijs: € 1.858,00 ; Oppervlakte: 90 m2 Het appartement is voorzien van een ruim opgezette hal met toegang tot de royale woonkamer met veel lichtinval en een open keuken voorzien van diverse inbouwapparatuur (o.a. vaatwasser, keramische kookplaat, koel- vriescombinatie en combimagnetron). De ruime woon-eetkamer met openslaande deuren creëert een lichte en luchtige sfeer, terwijl de goed uitgeruste keuken ideaal is voor het bereiden van heerlijke maaltijden. Het appartement heeft een comforta...
- Huur
- € 1.858 per maand
- Locatie
- Haarlem
- Huurperiode
- -
- Geverifieerd verhuurder
- Nee
- Datum
- Vandaag
- Beschikbaar
- Contact verhuurder
- Nutsvoorzieningen
- Contact verhuurder
- Borg
- Contact verhuurder
- Vooruitbetaalde huur
- Contact verhuurder
Locatie