1 kamer appartement in Haarlem

Oppervlakte
60 m²
Type eigendom
Appartement
Kamers
1 kamer

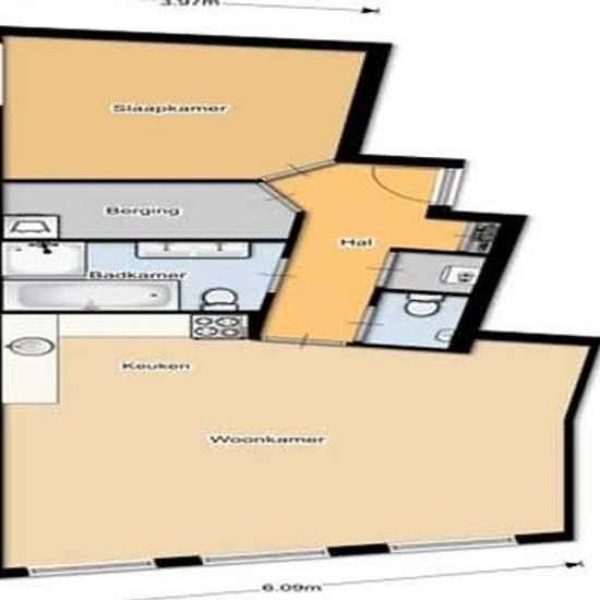
Appartement te huur aan de Barteljorisstraat in Haarlem Huurprijs: € 1.290,00 ; Oppervlakte: 60 m2 Indeling Gemeenschappelijke afsluitbare entree, trap naar de 1e etage en de inpandige (fietsen)berging. Entree, hal met berging en modern toilet met fonteintje. Licht betegelde badkamer met douchecel, ligbad, 2e toilet en 2 wastafels. Ruime berging c.q. walk-in closet. Grote, lichte woonkamer met drie grote ramen met uitzicht op de winkelstraat. Open en in hoek opgestelde keuken met vaatwasser, spoelbak, 4-pits gaskookplaat, afzuigkap, koelka...

Huur
€ 1.290 per maand
Locatie
Haarlem
Huurperiode
-
Geverifieerd verhuurder
Nee
Datum
Gisteren
Beschikbaar
Contact verhuurder
Nutsvoorzieningen
Contact verhuurder
Borg
Contact verhuurder
Vooruitbetaalde huur
Contact verhuurder
Locatie