1 kamer appartement in Bovenkarspel
-
Oppervlakte
- 48 m²
-
Type eigendom
- Appartement
-
Kamers
- 1 kamer
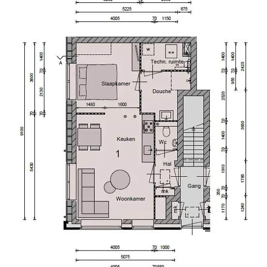
Omschrijving In het volledig nieuw gebouwde appartementencomplex Broekerwerf mogen wij u dit 1-kamer appartement van circa 48m² te huur aanbieden, welke gelegen is op de begane grond. Het appartement beschikt o.a. over een moderne keuken met diverse inbouwapparatuur; slaapkamer en moderne badkamer. Het appartementencomplex is gelegen op korte afstand van winkelcentrum Streekhof. Indeling: Begane grond: Entree/hal, toilet met fonteintje; keuken voorzien van diverse inbouwapparatuur; woonkamer -/ slaapkamer; badkamer voorzien van wastafel en ...
- Huur
- € 1.240 per maand
- Locatie
- 1611, Bovenkarspel
- Huurperiode
- Onbeperkt
- Geverifieerd verhuurder
- Ja
- Datum
- 4 dagen geleden
- Beschikbaar
- Contact verhuurder
- Nutsvoorzieningen
- Contact verhuurder
- Borg
- € 2.480
- Vooruitbetaalde huur
- Contact verhuurder
Locatie