1 kamer appartement in Amsterdam
-
Oppervlakte
- 46 m²
-
Type eigendom
- Appartement
-
Kamers
- 1 kamer
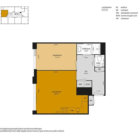
Zodra je de deur opent voel je je meteen thuis. Dit tweekamerappartement van ca. 45m² is perfect voor een koppel of alleenstaande. De hal geeft je toegang naar een aparte wc, badkamer, meterkast, slaapkamer en de woonkamer. Deze woonkamer wordt overspoeld met natuurlijk licht door de grote ramen, waardoor je van de zonnestralen kunt genieten in een luie stoel of zitgedeelte.Terwijl je een verrukkelijke maaltijd kookt in de open keuken, klets je lekker door met het bezoek in de woonkamer. De keuken is voorzien van een koelkast, inductieplaat,...
- Huur
- € 1.228 per maand
- Locatie
- 1062, Amsterdam
- Huurperiode
- -
- Geverifieerd verhuurder
- Ja
- Datum
- Gisteren
- Beschikbaar
- 01-03-2026
- Nutsvoorzieningen
- € 85
- Borg
- Contact verhuurder
- Vooruitbetaalde huur
- Contact verhuurder
Locatie