1 kamer appartement in Amsterdam
-
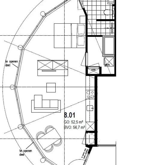
Oppervlakte
- 53 m²
-
Type eigendom
- Appartement
-
Kamers
- 1 kamer
Pietersbergweg 53 A - Luxe studio van circa 53 m2 op de 8e etage *** Reageren: U kunt alleen online reageren op deze woning. *** Omringd door water, spreken de drie imposante torens voor zich: Trinity Buildings staat voor klasse, stijl en comfort. In de woontorens zijn 133 comfortabele appartementen te vinden in verschillende prijsklassen. Alle woningen zijn bijzonder luxe afgewerkt en van alle gemakken voorzien. Je fiets, scooter of auto parkeer je zorgeloos in de parkeerkelder. In de royale gemeenschappelijke stadstuin geniet je van de Ams...
- Huur
- € 1.045 per maand
- Locatie
- 1105, Amsterdam
- Huurperiode
- -
- Geverifieerd verhuurder
- Ja
- Datum
- Vandaag
- Beschikbaar
- Contact verhuurder
- Nutsvoorzieningen
- € 115
- Borg
- € 1.045
- Vooruitbetaalde huur
- Contact verhuurder
Locatie