1 kamer appartement in Amsterdam

Oppervlakte
58 m²
Type eigendom
Appartement
Kamers
1 kamer

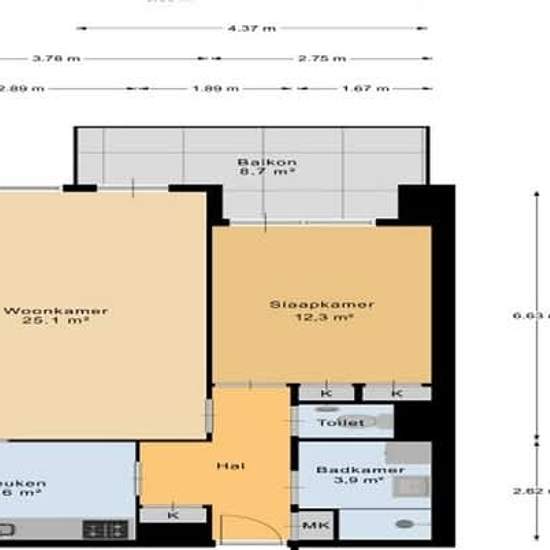
Appartement te huur aan de Staalmeesterslaan in Amsterdam Huurprijs: € 1.430,00 ; Oppervlakte: 58 m2 Indeling Via de ingang op de vierde verdieping betreedt u de hal. Vanuit deze ruimte heeft u toegang tot de keuken, woonkamer, het separate toilet en de badkamer. De open keuken beschikt over een recht keukenblok en biedt toegang tot een balkon op het westen. Meer informatie over doze woning? Meld je aan via de volgende link:

Huur
€ 1.430 per maand
Locatie
Amsterdam
Huurperiode
-
Geverifieerd verhuurder
Nee
Datum
2 dagen geleden
Beschikbaar
Contact verhuurder
Nutsvoorzieningen
Contact verhuurder
Borg
Contact verhuurder
Vooruitbetaalde huur
Contact verhuurder
Locatie