5 room apartment in Amsterdam
-
Area
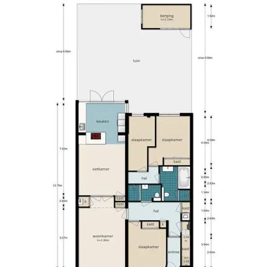
- 121 m²
-
Property type
- Apartment
-
Rooms
- 5 rooms
- RENTAL ADD IS BELOW THE SALES ADD - WIJ BIEDEN AAN IN DE RIVIERENBUURT: EEN UNIEK EN ZEER RUIM FAMILIEAPPARTEMENT (GO = 121M² - BVO = 130M²) MET EEN FANTASTISCHE ZUID GERICHTE TUIN (CA. 78M²), 3 SLAAPKAMERS, 2 BADKAMERS EN EEN ZEER GROTE OPEN WOON- EN EETKAMER VAN CA. 53M². DIT IS EEN ‘MUST SEE’ IN HET HART VAN AMSTERDAM: EEN HEERLIJK WOONOMGEVING, SLECHTS 100/200 METER VAN DE BEKENDE EN LEVENDIGE MAASSTRAAT EN SCHELDESTRAAT, MET RESTAURANTS, SUPERMARKTEN, WINKELS EN VOORZIENINGEN. TEVENS OP LOOPAFSTAND VAN HET BEATRIXPARK EN DE POPULAIRE ...
- Rent
- €7,250 per month
- Location
- 1078, Amsterdam
- Rental period
- -
- Verified landlord
- Yes
- Date
- 6 days ago
- Available
- Contact landlord
- Utilities
- Contact landlord
- Deposit
- Contact landlord
- Prepaid rent
- Contact landlord
Location