4 room apartment in Maastricht
-
Area
- 80 m²
-
Property type
- Apartment
-
Rooms
- 4 rooms
Available now
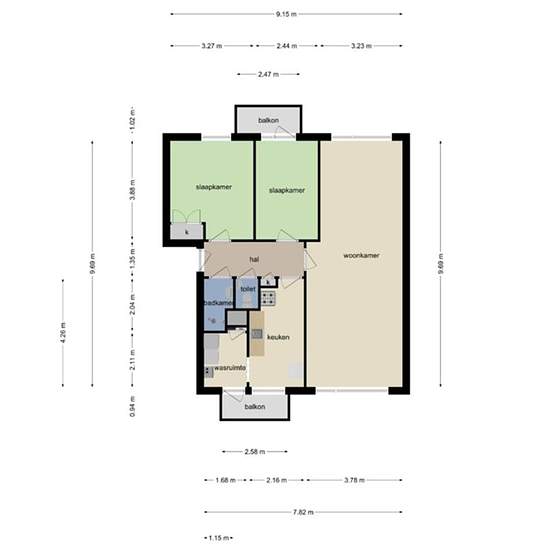
MAASTRICHT - APARTMENT WITH 2 BEDROOMS - FOR STUDENTS Apartment located in the popular Belfort neighborhood with two shopping centers within walking distance. Situated on the third floor, this apartment has 2 bedrooms; furthermore a balcony at both the front and rear, a luxury kitchen and a private storage room. LAYOUT Ground floor Communal entrance, video intercom system and access to private storage (4.00 x 3.00). 3rd floor Hall with video intercom and built-in cupboard, kitchen (4.00 x 2.10) with, among other things, gas hob, stainless st...
- Rent
- €915 per month
- Location
- 6216, Maastricht
- Rental period
- -
- Verified landlord
- Yes
- Date
- 10 days ago
- Available
- Available now
- Utilities
- Contact landlord
- Deposit
- Contact landlord
- Prepaid rent
- Contact landlord
Location