4 room apartment in Amsterdam
-
Area
- 107 m²
-
Property type
- Apartment
-
Rooms
- 4 rooms
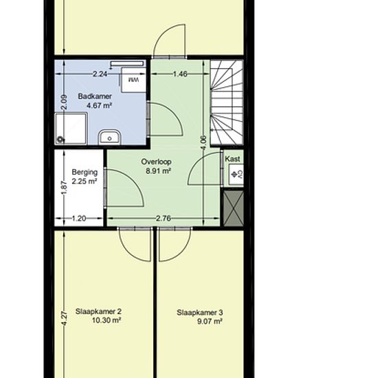
DESCRIPTION GREAT HOME! Spacious 4-room apartment of approximately 107m2 spread over two floors with a balcony! SURROUNDINGS: From this quiet part of Amsterdam (Amsterdam East/Zeeburg) you can be in the heart of the city center in no time. But for trendy spots, you don’t even have to go far; Amsterdam East is hip & happening! For recreation, you can visit Oosterpark and Flevopark. LAYOUT: Take the elevator to the fifth floor; entrance, the closed kitchen equipped with a standard kitchen unit at the front, at the rear the living room with ac...
- Rent
- €2,300 per month
- Location
- 1019, Amsterdam
- Rental period
- Unlimited
- Verified landlord
- Yes
- Date
- 4 days ago
- Available
- Contact landlord
- Utilities
- €57
- Deposit
- €1,500
- Prepaid rent
- Contact landlord
Location