3 room house in Waalre
-
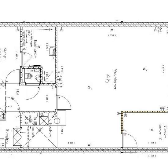
Area
- 117 m²
-
Property type
- House
-
Rooms
- 3 rooms
Available now
Looking for a cozy bungalow in picturesque Waalre? Then this house on Dassenberg is exactly what you are looking for! This charming house from 2012 has a total floor area of 117.00 m² and is ideal for a couple or small family. Located in a quiet neighborhood in Waalre, this bungalow offers the perfect balance of peace and comfort. The house features a cozy living room, a modern kitchen, two spacious bedrooms, and a neat bathroom. There is also a generous garden where you can enjoy the sun and fresh air. With all amenities within a short di...
- Rent
- €1,995 per month
- Location
- 5581, Waalre
- Rental period
- More than 12 months
- Verified landlord
- Yes
- Date
- 14 days ago
- Available
- Available now
- Utilities
- Contact landlord
- Deposit
- €1,995
- Prepaid rent
- Contact landlord
Location