3 room house in Rotterdam
-
Area
- 180 m²
-
Property type
- House
-
Rooms
- 3 rooms
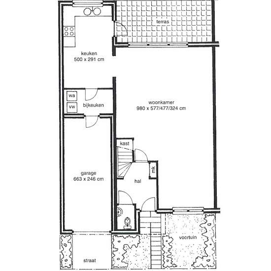
Te huur: Eengezinswoning van 180 m2. De eerste verdieping geeft, via de overloop, toegang tot drie slaapkamers en een comfortabele badkamer met ligbad, separate douche, wastafel en een tweede toilet. De zolderetage, met twee grote dakramen, is geschikt als vierde slaapkamer. Er is een open keuken aanwezig met daarbij een bijkeuken met aansluiting voor de wasmachine en vaatwasser. De badkamer beschikt over een ligbad, separate douche, wastafel en een tweede toilet. Het betreft een tussenwoning met een berging aan straatzijde. Standaard beschi...
- Rent
- €2,258 per month
- Location
- 3062, Rotterdam
- Rental period
- -
- Verified landlord
- Yes
- Date
- Today
- Available
- Contact landlord
- Utilities
- Contact landlord
- Deposit
- Contact landlord
- Prepaid rent
- Contact landlord
Location