3 room house in Nederland
-
Area
- 77 m²
-
Property type
- House
-
Rooms
- 3 rooms
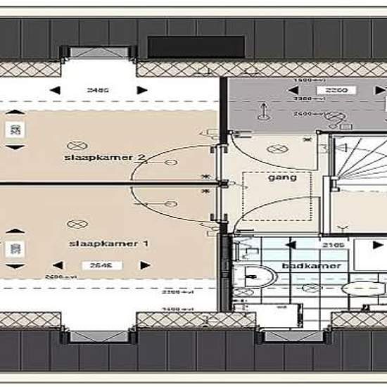
House Overakker in Eindhoven The link is in the comment This charming home combines tranquility, comfort and a sense of community. The bright living room feels spacious and inviting and provides access via a sliding door to a private terrace of approximately 20 m², perfect for relaxing with views of greenery and complete privacy. The open kitchen at the front is finished in a modern style, fitted with sleek handles and all necessary built-in appliances, including an induction hob, combi microwave, dishwasher and extractor hood. On the fi...
- Rent
- €1,145 per month
- Location
- Nederland
- Rental period
- -
- Verified landlord
- No
- Date
- Yesterday
- Available
- Contact landlord
- Utilities
- Contact landlord
- Deposit
- Contact landlord
- Prepaid rent
- Contact landlord
Location