3 room apartment in Utrecht
-
Area
- 60 m²
-
Property type
- Apartment
-
Rooms
- 3 rooms
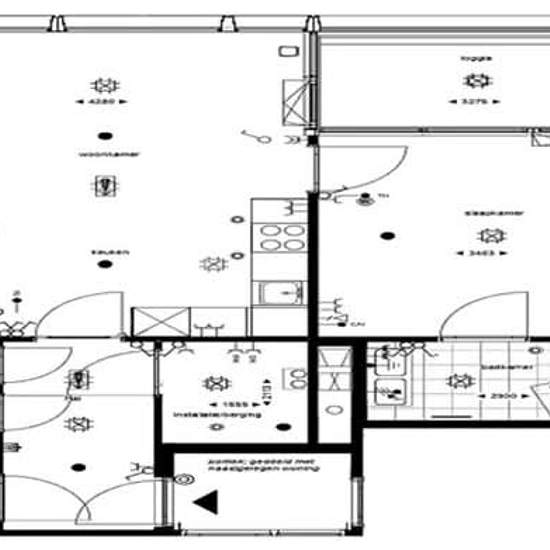
" Stijlvol 3-kamer appartement aan de Hoola van Nootenstraat – Utrecht Hoola van Nootenstraat, 3521 BC Utrecht € 1.490,- excl. G/W/E Appartement Kamers: 3 Oppervlakte: 60 m² Beschrijving Via de entree stap je binnen in een fijn en modern appartement waar comfort en stijl samenkomen. De badkamer is strak en luxe afgewerkt, voorzien van een royale inloopdouche en een dubbele wastafel — perfect voor een ontspannen start van de dag. De lichte woonkamer biedt ruimte voor een gezellige zithoek en grenst aan de open keuken, uitgerust m...
- Rent
- €1,490 per month
- Location
- Utrecht
- Rental period
- -
- Verified landlord
- No
- Date
- Yesterday
- Available
- Contact landlord
- Utilities
- Contact landlord
- Deposit
- Contact landlord
- Prepaid rent
- Contact landlord
Location