3 room apartment in Tilburg
-
Area
- 83 m²
-
Property type
- Apartment
-
Rooms
- 3 rooms
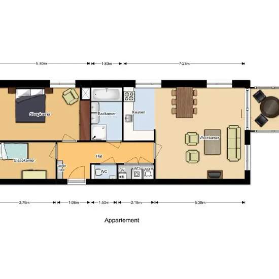
Spoorlaan 205 – Tilburg – Spacious three-room apartment (83 m2) – 7th floor The luxury apartment building "De Stadsheer" is located in the immediate vicinity of Tilburg city center. Within walking distance of the center with all its urban amenities, public transport around the corner and easily accessible main roads. Layout: This spacious three-room apartment is situated on the 7th floor of the luxury residential tower — which means living with a beautiful view! The property has a living area of 83 m2. There is a generous living room with ...
- Rent
- €1,083 per month
- Location
- 5038, Tilburg
- Rental period
- -
- Verified landlord
- Yes
- Date
- 3 days ago
- Available
- Contact landlord
- Utilities
- €95
- Deposit
- €1,083
- Prepaid rent
- Contact landlord
Location