3 room apartment in The Hague

Area
80 m²
Property type
Apartment
Rooms
3 rooms

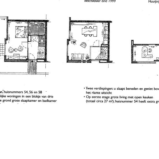
Buizerdlaan 56 | Den Haag / Ypenburg | Eengezinswonign woning met drie woonlagen Reageren en selectie: U kunt alleen online reageren op deze woning. Doe dit via de ‘reageer’-knop onderaan de pagina van de advertentie op onze website.. Wij maken een selectie van de kandidaten die kunnen bezichtigen. Bezichtigingsaanvragen per e-mail of telefoon nemen wij niet in behandeling. Indeling: Deze speelse en gerenoveerde woning heeft een woonoppervlak van circa 80 m². Op de begane bevindt zich een grote slaapkamer en de badkamer. Op de tweede woonlaa...

Rent
€1,229 per month
Location
2496, The Hague
Rental period
-
Verified landlord
Yes
Date
4 days ago
Available
Contact landlord
Utilities
Contact landlord
Deposit
Contact landlord
Prepaid rent
Contact landlord
Location